Solutions techniques

Façades vitrées
et menuiseries aluminium

Étude, fabrication et pose. Une exécution propre, des interfaces maîtrisées.

En images

Chantiers & détails d’exécution

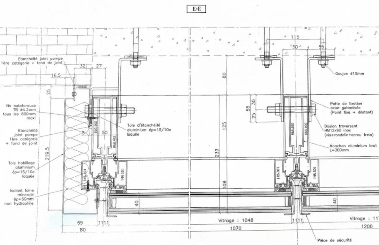
Façade vitrée – pose

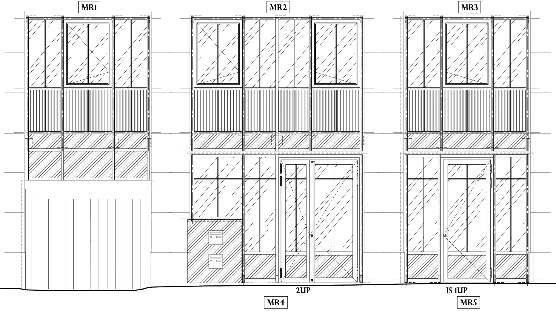
Façade vitrée

Étude & calepinage

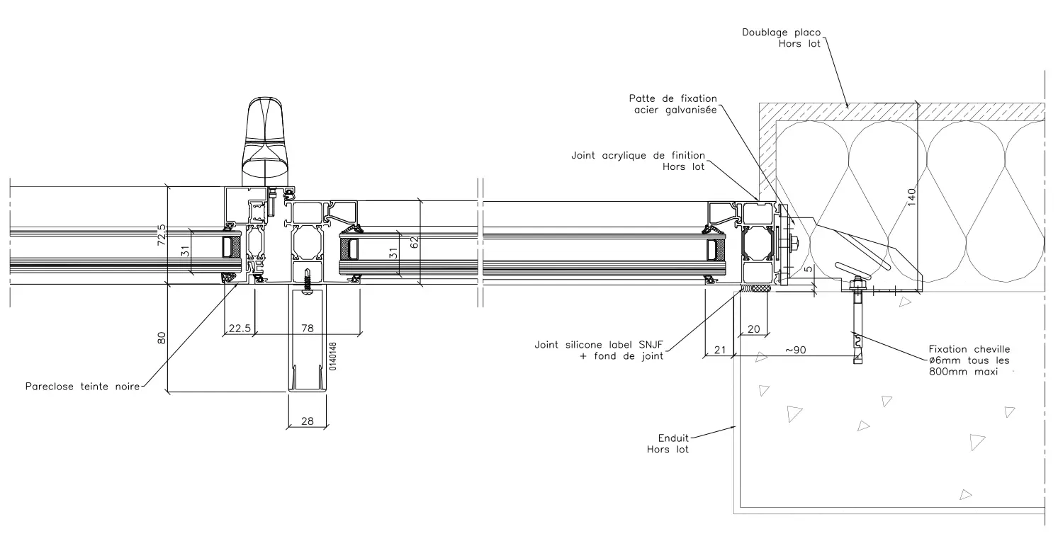
Menuiserie aluminium – détail

Menuiseries alu

Détails & finitions

Réhabilitation – chantier

Façade techniques

VEA, VEC & systèmes spécifiques

Maintenance – intervention

Réhabilitation lourde

Remplacement & contraintes chantier

Nos domaines d’intervention

Une réponse globale aux exigences techniques et esthétiques des projets tertiaires & industriels.

01
Façade mur-rideau

Façades / Murs-rideaux

Capot serreur • VEC/VEA • Interfaces

Conception et pose de façades aluminium. Maîtrise des détails d’étanchéité, des allèges, des reprises et de l’intégration des équipements.

  • Trames horizontales / verticales
  • Brise-soleil & ouvrants intégrés
  • Acoustique / thermique
02
Menuiseries aluminium

Menuiseries aluminium

Portes • Châssis • Ouvrants techniques

Fabrication sur-mesure de menuiseries extérieures techniques : portes grand trafic, ensembles vitrés complexes, contraintes ERP.

  • Quincailleries & sécurité
  • Vitrages techniques
  • Finitions (RAL / anodisation)
03
Réhabilitation et rénovation

Réhabilitation / rénovation

Dépose • Remplacement • Reprises

Remplacement de façades existantes et interventions complexes. Gestion des contraintes structurelles, phasage et coordination.

  • Relevés & diagnostic
  • Dépose soignée & tri
  • Amélioration thermique
04
Maintenance et SAV

Maintenance annuelle & SAV

Contrats • Interventions • Pérennité

Contrats de maintenance pour assurer la pérennité de vos ouvrages (contrôles, réglages, prévention). Interventions ciblées en Île-de-France.

  • Organes de rotation & quincaillerie
  • Étanchéité & reprises
  • Remplacement vitrages

Un projet de construction ou réhabilitation ?

Notre bureau d'études est à la disposition des maîtres d'ouvrage et entreprises générales pour l'étude et le chiffrage de vos lots architecturaux.

Solliciter notre bureau d'études

Notre méthodologie

Un processus maîtrisé pour garantir qualité, sécurité et délais.

1

Études & BIM

Conception 3D, plans d’exécution détaillés, notes de calcul et synthèse architecturale.

2

Fabrication

Usinage et assemblage sur-mesure dans nos ateliers de Champagne-sur-Oise.

3

Logistique & Pose

Installation sécurisée, levage propre et respect strict des phasages du chantier.

4

Réception & DOE

Livraison du Dossier d'Ouvrage Exécuté (DOE), levée des réserves et garantie de parfait achèvement.